Caratteristiche tecniche e Imballi

 

SKYRAIL® è stampato in ABS, stabile ai raggi UV ed agli agenti chimici.

ARTICOLO INTERASSE (cm) LUCE (cm) ALTEZZA SKYRAIL (cm) ALTEZZA SOLETTA (cm) ALTEZZA TOTALE (cm) NERVATURA (cm) CONSUMO CLS_A_RASO (m3/m2) CONSUMO CLS (m3/m2) PASSO PUNTELLI (m)
SKYRAIL_H16 60 51 16 4 20 9 0.033 0.073 3
60 51 16 5 21 9 0.033 0.083 3
SKYRAIL_H20 60 51 20 4 24 9 0.044 0.084 3
60 51 20 5 25 9 0.044 0.094 3
SKYRAIL_H24 60 51 24 4 28 9 0.054 0.094 3
60 51 24 5 29 9 0.054 0.104 3
ARTICOLO DIMENSIONE PALLETS (cm) PALLETS n°PEZZI / KG
SKYRAIL_H16 120 X 112 X 230 208 540
SKYRAIL_H20 120 X 112 X 232 204 570
SKYRAIL_H24 120 X 112 X 235 200 620
SKYBLOCK_H16 80 X 120 X 230 288 337
SKYBLOCK_H20 80 X 120 X 233 284 389
SKYBLOCK_H24 80 X 120 X 235 280 440
TRAVETTO A T 80 X 120 X 220 140 258
 

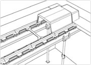
Posa in Opera

Operazioni di Montaggio sistema SKYRAIL

 

1

Posizionare i puntelli in ferro e inserire le travi in legno. Fissare l’elemento d’appoggio al muro.

2

Posizionare il pannello di compensazione in legno o GEOPANEL dello spessore di 80mm

3

Posare le prime 2 file di travetti.

4

Posizionare il pannello di compensazione in legno dello spessore di 25mm.

5

Inserire i distanziatori tra i travetti.

6

Posizionare elemento SKY BLOCK.

7

Posizionare il primo elemento SKYRAIL.

8

Posare gli elementi SKYRAIL incastrandoli perfettamente tra loro.

ORDINE DI POSA

Al fine di posizionare correttamente i pannelli di compensazione nei cordoli laterali, è fondamentale consultare le tavole di progetto GEOPLAST prima di procedere alla posa degli elementi del solaio.

 

Scassero sistema SKYRAIL

 

1

Togliere i distanziatori.

2

Togliere i puntelli e le travi in legno a due a due.

3

Togliere i travetti.

4

Togliere gli elementi SKYRAIL.

5

In corrispondenza delle nervature, puntellare il solaio come indicato nelle tavole di progetto GEOPLAST fino alla conclusione del tempo di maturazione.

 
 
//Show ZOHO chat on Geoplast.it English